Get 10% off this month when you try our services!
Get 10% off this month when you try our services!
With the use of simple technology we view your room, then create colour schemes, concept board and drawings to make transformations, simple, easy and budget friendly.

An itemised list of suggested paint colours for your scheme. From walls, ceiling to woodwork.

A collection of images representing colours, fabrics, furniture and fittings providing an overview of how your scheme will appear.

Scale floor plans either hand drawn or CAD for your new room.
In addition to the three items above, the essential design offer also includes floor plans/furniture layout, styling tips and a clickable high street shopping list

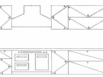
A selection of sketches and/or CAD drawings to illustrate your new scheme.

An illustrated list of furniture and accessories with notes on how to position them within your setting to create the mood that is to be achieved.

A personalised shopping list for your room will be collated. high street stores are used, no commissions, no hard sell. You decide what to purchase, where, how and at what price.
In addition to the six items above, the deluxe design offer can include elevations, 3d visualisations, lighting and electrical


Detailed colour elevation of one wall of the chosen room.
A detailed scaled floor plan with electrical and technical layout for use by trades people.
A detailed cabinetry elevation for use by trades people.
On site, on the telephone and associated communications.
No two client's requirements will be the same so we are more than happy to tailor our offers to your needs. Therefore mix and match packages can be designed with individual quotes
Copyright © 2023 Property Jems - All Rights Reserved.
Powered by GoDaddy Website Builder